Успеют или нет? Секрет Яшкинской школы.
20.07.2025
В Кузбассе продолжается ремонт школьных учреждений, это не может не радовать. Очередным объектом, который попал в наше поле зрения стала школа №1 Яшкинского муниципального округа. В социальных сетях публикуются регулярно снимки с главой округа, который всё держит на контроле. Мы тоже не плошаем и решили проанализировать контракт на госзакупках и реальную обстановку на территории. Начнем, пожалуй, с самой закупки. Конкурс объявили в феврале 2024 года, а контракт быстро подписали с алтайской компанией ООО "СК Профлидер". Начальная цена была в 223 миллиона, но на торгах опустилась до 203 миллионов. Такое бывает, но в процессе реализации контракта она вдруг начала расти, как и смещаться сроки исполнения. Ладно, когда сумма контракта один раз увеличивается законодательными механизмами на 10%, это допустимо, но когда еще раз? Не предусмотрели? И еще есть один хитрый секретик, о котором мы вам расскажем.Давайте знакомиться со школой. Так она выглядела раньше.

В процессе ремонта начала преображаться

Находится вот здесь

Переходим к закупке

Выигрывает компания за 203 миллиона


Срок выполнения работ до 30 апреля 2025 года

Предоплата 20%

Время шло, писались дополнительные соглашения. В марте аванс увеличивают до 50%.

В апреле, почти когда должны были сдавать работы, меняют сумму контракта и увеличивают её на 10%.

В июне меняют сроки работ до конца сентября 2025 года


А в июле 2025 года снова увеличивают (второй раз) стоимость контракта, уже до 247 миллионов рублей. Срок исполнения контракта сдвигают на 31 марта 2026 года.

А что у нас говорит глава муниципального округа?

Он еще зимой сообщал в своем телеграмм канале

График не сложился, судя по дополнительным соглашениям.
18 июля Сергей Богданов пишет то же самое. Теперь то, конечно, сроки в марте 2026 года заканчиваются, но обещает завершить к началу учебного года.

Сами строители скептически относятся к срокам, говорят, не раньше второй четверти работы сдадут.
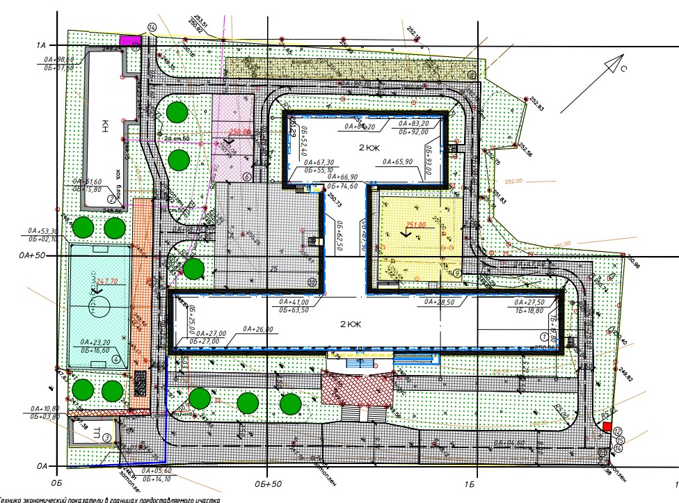
А теперь переходим к секретику, мы же обещали. Для этого открываем проектную документацию к основной государственной закупке по капитальному ремонту школы. Там вот такие красивые файлы, в которых указано, что и где должны капитально отремонтировать и как.

Смотрим пояснительную записку, что там надо сделать

Есть 35 пункт по благоустройству. Сами можете прочитать, что там запланировано в капитальном ремонте.

И вот, что у нас должно входить в капитальный ремонт. Эта документация приложена к основному контракту на капитальный ремонт.



Тут всякие дополнительные штуки


Что должно быть установлено

Демонтаж старых элементов, валка деревьев (ниже увидите)

На Яндексе даже можно увидеть уже новый забор

Вот он более детально

Но никакого благоустройства пока не видно.

Лишь спиленные деревья

Внимание, вопрос: Что это за новый конкурс по благоустройству территории школы №1 на 25 миллионов рублей от 16 июля 2025 г.? Сначала объявляют конкурс на 21 миллион, но потом отменяют. Маловато.

Затем 25 миллионов

Заходим в конкурсную документацию

Срок вообще май 2026 года

Смотрим проект и видим, что там всё то же, что было в общем контракте в проектной документации



Даже картинки совпадают.

Как там мог появиться новый забор, если контракт на благоустройство только опубликован?
Но ведь в дополнительных соглашениях ранее было благоустройство, смотрите самую длинную полосу работ.


Если открыть последнее соглашение №13 от июля 2025 года, то мы увидим даже в наименовании файлов - "без благоустройства", специально написали, чтобы самим не запутаться.

Т.е. благоустройство из общего контракта взяли и вычеркнули

Сравниваем сводную смету от ноября 2024 года

Теперь от июля 2025 года

Фактически при ухудшении условий контракта было произведено увеличение стоимости контракта с 203 миллионов до 247 миллионов рублей.
Теперь отдельно опубликовали сверху еще 25 миллионов рублей. Красиво. Интересно, что на это скажут правоохранительные, контролирующие и надзорные органы? Как там дела у Сергея Богданова? Ждем новых фоточек с объекта, у него красиво получается.
С уважением,
Учватов Максим
Количество показов: 8050
Комментарии
Чтобы оставить комментарий, вам необходимо авторизоваться на сайте

