Вместо детского сада точечная застройка?
22.06.2018
Все тайное становится явным. Помните в апреле месяце ВРИО губернатора Сергей Цивилев выезжал на Притомский проспект? Там вокруг него еще бегал местный олигарх Михаил Федяев из холдинга "СДС". В рамках визита обсуждался вопрос о строительстве детского сада и предприниматель пообещал Цивилеву, что проектирование детского сада его коммерческие компании возьмут на себя. Буквально неделю назад позвонили жители высоток и сообщили, что есть тревожный сигнал. В администрации города им сказали, что никакого детского сада не будет, а будут высотные дома. И как вы думаете? Оказывается есть решение суда, которое говорит о том, что там будут строить 2 девятиэтажных дома. После визита Цивилева там снесли ветхие постройки, а вот отдельного детского сада там не будет. ВРИО губернатора сообщил людям, что берет этот вопрос на контроль, однако олигарх не поспешил уведомить, что прошел судебный процесс по поводу планировки строительства коммерческих площадей. Отвечать теперь Цивилеву, а деньги зарабатывать на домах - Федяеву.
Видео
Школа и детский сад
СМИ
Вот отличное видео с обещаниями
"Проектирование за наш счет, снос за наш счет", - говорит Михаил Федяев.
В этот же день ВРИО губернатора провели по детскому саду

К сожалению, окружение Цивилева забыло сообщить, что данный детский сад надолго закрывался, из за наличия вредных веществ, допущенных при строительстве жилого дома. Роспотребнадзор по обращениям граждан там проводил проверку, после того, как детям стало плохо. "Общероссийский Народный Фронт" обращался в государственные органы с требованием проверки.
Но вернемся к строительству. В сети опубликовали решение суда и информацию по данной площадке, где сносили ветхие дома и планировали строить детский сад.
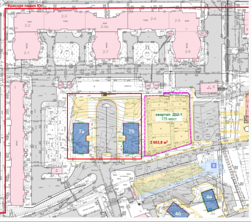
Многие помнят, что год назад на публичных слушаниях, участники фактически ветировали желание компании СДС построить два жилых дома на месте сгоревших частных домов. Эти дома должны были получить адреса 7А и 7Б. Новость о слушаниях проходила у нас на форуме
Вот картинка


Однако, мнение жителей компанию "СДС" не удовлетворило, и она решила провернуть его (мнение) на определенной части тела. Для этого "СДС" подала в суд на администрацию Кемерово. Среди аргументов "СДС" было мнение о том, что мнение горожан и публичные слушания это фуфло: "Таким образом, считает, что замечания граждан против возведения в микрорайоне № 7Б двух девятиэтажных домов не основаны на законе и не могут являться основанием для отклонения органом местного самоуправления проекта планировки и проекта межевания территории в части размещения двух многоквартирных домов со строительными номерами 7А, 7Б.На основании изложенного, по мнению заявителя, отказ администрации города Кемерово утвердить откорректированные проект планировки и проект межевания территории, не позволяет реализовать ООО «СДС-Строй» предоставленное законом и договором право на развитие застроенной территории, в связи с чем постановление администрации от 16.08.2017 №2203 в оспариваемой части является незаконным. " Суд "СДС" ожидаемо выиграла.
Решение суда
Смотрим какое основание. Мол начальная школа будет в средней, увеличение мест на 103 единицы. Этого вообще недостаточно.

Жители близлежащих домов уже во всю пишут жалобы. В администрации города пожимают плечами и говорят - ну что поделать, решение суда, есть решение суда. Плюсом к точечной застройке добавляется отсутствие необходимого количества детских площадок и парковочных мест. В результате, можно теоретически интерпретировать слова крупного предпринимателя, который на тот момент уже знал о строительстве двух домов, как лукавство напрямую в лицо руководителю региона. Старая тулеевская команда недорого возьмет, как говорится. А вот дойдут ли жалобы жителей до губернатора, это уже второй вопрос. И что ответить на данную ситуацию Цивилеву?
С уважением,
Учватов Максим
Количество показов: 9336
Количество комментариев к элементу: 8
Комментарии
|
Середюк против Федяева?))))) Да подставили эти два кадра Цивилева конкретно, а скоро выборы. Кстати деревню Ново Балахоновка можно с карты стирать благодаря Федяеву и куму Середюка Орлову. Творят что хотят, не ужели все так и будет как при Тулееве?
|
| ||
|
Середюк помни про Шнитко, что ты будешь докладывать Цивилеву в сентябре? Это тебе не Аман, провалами памяти и маразмом не страдает. Кстати массовку из бабушек специально организовали или реально просто случайно подошли? Даже отдых детей Ильюша с Глебом нормально организовать не смогли, а Цивилев проверил.
|
|
Что Цивилеву делать? Ответы простые: 1. Очистить высший кадровый состав области от таких, как середюк, Орлов и им подобные. 2. Жёстко отрагировать на действия сдс так, чтобы другим не повадно было дурить областную власть и работать "под дурочка". 3. Показать свой характер и всё-таки выполнить свое обещание. Но, в рамках правового поля. Только так можно будет Кузбассу жить по новому, цивилизованно и достойно, а не бултыхаться во лжи, вседозволенности и наживы кучки тул еевских халуев.
|
|
Думается, г-ну Федяеву все равно на то, что он там наобещал )). У нас в стране нет управы на дельцов, которые исправно платят налоги и умеют пускать пыль в глаза - начиная с простолюдина, заканчивая чиновником. Помнится, этот "честный гражданин" прилюдно, на глазах многотысячного трудового народа обещал не проводить сокращения на одном из крупных градообразующих предприятий области. Не прошло и полугода, как под безжалостную мясорубку сокращений попали все - от ИТР до рабочих, и пофиг на всех, главное, что они деньги гребут и обеспечили своих потомков на ближайшие лет 50))
|
|
Ниху,,,,я в этой клоаке под названием кузбасс не изменится! Валить надо от седа! Вместо паранойного дебила прислали клоуна который из себя царя батюшку гнёт! А сам тока перераспределением шахт занимается!
|
|
Я больше в этом цирке не участвую! Всем пока, доживайте!
|
|
Как я некогда заметил - вы ещё попомните добрым словом АГТ. Подождите немного.
|
Чтобы оставить комментарий, вам необходимо авторизоваться на сайте

